SCORPIO 45′
The Scorpio 45′ is a telescopic crane made up of telescopic tubes and a central one designed and manufactured with the same technology as the Scorpio 23′.
Presentation
The Scorpio 45′ is a telescopic crane made up of telescopic tubes and a central one designed and manufactured with the same technology as the Scorpio 23′.
It is manufactured using an extrusion process to achieve the greatest rigidity and uniformity along with the best finishes.
The design of this equipment has been based on the desire to reach the perfect compromise between the maximum distance of telescopic travel, the best movement of the arms, the highest possible load for the standard needs of a running-in and the possibility of being installed and operated by the technicians in a reasonably simple way.
Technical specifications
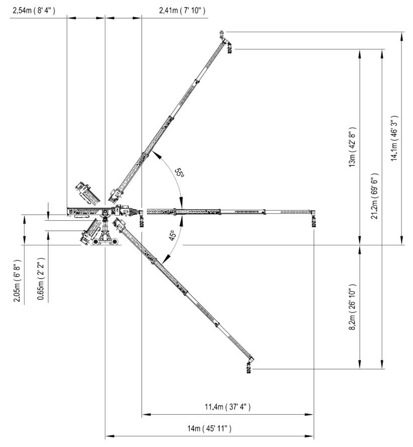
TECHNICAL SPECIFICATIONS
| Maximum length: | 14 m (45 11”’) |
| Minimum length: | 2.41m (7′ 10″) |
| Telescopic range: | 11,4 m (37´4´´) |
| Max. optic axis height: | 14,1 m (46´3”) |
| Telescopic column maximum extension: | 0,65 m (2´2”) |
| Payload in Underslung: | 70 kg. (154lbs) |
| Payload in Overslung: | 45 kg. (99lbs) |
| Required power: | AC 220V/30A or AC110V/30A |
| Output power for remote head: | DC 30V/20A |
| Output power for monitor: | DC 12V/3A |
Features
FEATURES
- Programmable limits on the telescopic movement of the arm.
- Programmable movements of the telescopic arm
- Motion Generator of the telescopic arm respect to Pan or Tilt.
- Data displayed on screen: arm range, height of the optic axis and Pan and Tilt angles.
- Arm speed and Damping adjustable and displayed on the screen.
- Programmable Stop Sequence.
- Pan, Tilt and Arm encoder output for Motion Capture jobs.
- 4 telescopic sections plus Central Arm
- Smooth movement in high and slow speed
- Noise reduction system of the telescopic arm movement
- The head can be mounted Underslung or Overslung
- Dynamic counterweight system
- Adjustable fluid in Pan and Tilt
- 55º inclination on the Tilt arm
- 2 telescopic column to higher 2 position
- Selectable width of the articulated legs with lockable position










